Showing entries


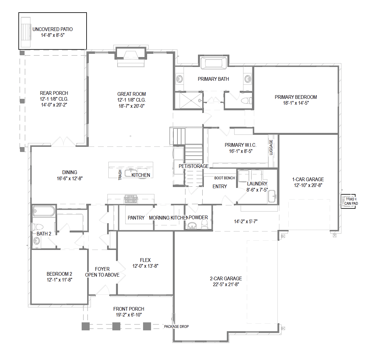
GMHBA 2025 Ideal Home built by Russell Construction of Alabama
- Builder: Russell Construction of Alabama
- Neighborhood: GMHBA 2025 Ideal Home
- Address: 591 Kings Meadow Street, Pike Road AL 36064
- Beds: 4
- Baths: 3
- Sq. Footage: 3002+/-



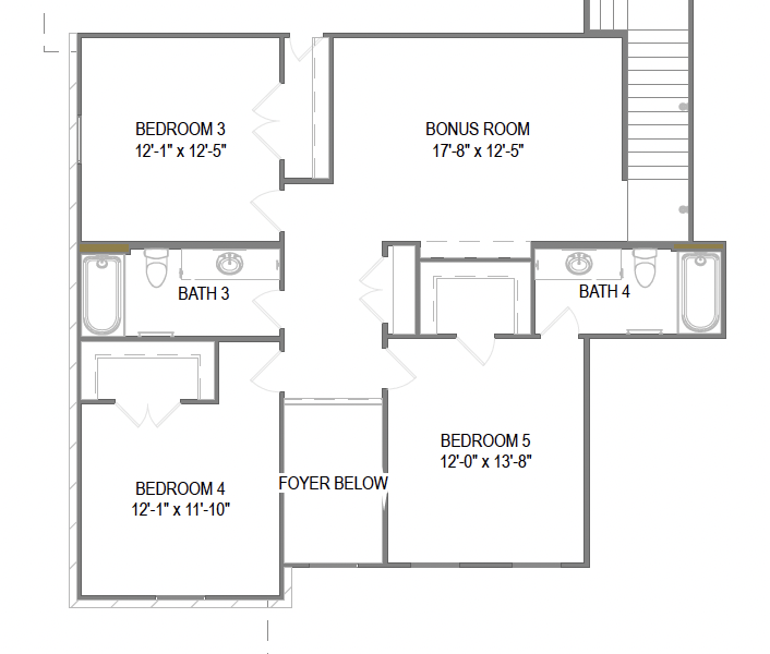
The Camden Craftsman
- Builder: Lowder New Homes
- Neighborhood:
- Address: 581 Kings Meadow, Pike Road AL 36064
- Beds: 4
- Baths: 3
- Sq. Footage: 3767+/-